Golden, Colorado · New Construction · 1,460 Sq Ft

Attainable.
Uncompromised.

Rogers 14 brings something rare to Golden — true attainability without compromise. Modern construction, Colorado's best outdoor amenities at your doorstep.

Request Information View Floor Plans
Plans Starting At
95,000
3 Bed · 3 Bath · 2-Car Garage · 1,460 Sq Ft
14Exclusive Homes
1,460Total Sq Ft
3/3Bed / Bath
2Car Garage (EV)
95KStarting Price

Golden's most attainable new construction

In a market where new detached homes routinely push into the upper price brackets, Rogers 14 stands out as the most attainable detached new-build option in Golden. For many buyers, Rogers 14 is the only opportunity to purchase a new detached home in the Golden area without crossing into luxury pricing.

"A Golden address, new construction quality, and a price point that finally makes sense."

Golden is one of Colorado's most land-constrained and tightly regulated housing markets. New construction — especially detached homes — is exceptionally limited. Rogers 14 represents a rare chance to own new construction in a city where opportunities are scarce.

Lowest Priced Detached New Build in Golden Rogers 14 Exterior

Modern, low-maintenance living

Energy Efficiency

96.1% efficiency Amana furnace, 2-ton 14.5 SEER AC, Rinnai 199K BTU tankless water heater, and R49 attic insulation — built to keep utility costs low.

Amana HVAC · Rinnai Tankless · R49 Attic

EV-Ready Garage

Level 2 EV outlet in every garage — 240V, 50-amp dedicated circuit. Liftmaster chain drive opener with 2 remotes and keypad included.

240V / 50-Amp · Liftmaster Opener

Samsung Appliance Suite

Full stainless steel kitchen package: 30" freestanding gas range, over-range microwave, built-in dishwasher, and 36" French-door refrigerator.

Samsung Stainless Steel · Full Suite Included

Napoleon Electric Fireplace

Napoleon Entice 42" wall-hanging electric fireplace with 10 lighting options, temperature control, and remote. 5,000 BTUs on standard 120V.

Napoleon Entice 42" · NEFL42CFH-1

Premium Finishes Throughout

3cm quartz countertops, slab cabinetry in Baroque Oak, euro-style frameless shower doors, Kohler toilets, and Delta chrome fixtures throughout.

Quartz Counters · Kohler · Delta Chrome

Lock-and-Leave Lifestyle

HOA covers snow removal, lawn maintenance, trash & recycling, and master water billing. True lock-and-leave freedom with a 20-year reserve plan.

HOA Managed · Snow · Lawn · Trash Included

Built to a Higher Standard

Exterior Structure
SidingCollins Truwood Horizontal Lap w/ Board & Batt Accent
Exterior Walls2x6 / 2x4 on 4x10, 7/16" ZIP Wall Panel OSB
Roof ShingleGAF Timberline, Rustic Black
Metal Roof (Porch)24-Gauge Standing Seam, Black
Gutters5" K-Style Seamless Aluminum, Painted
Concrete4000 PSI, Wire Mesh — Broom & Smooth Finish
Windows & Doors
WindowsAlpine 70 Series Vinyl, Low-E 1" Insulated Glass
Window ColorWhite Interior & Exterior
Front DoorThermaTru 3'×8' 5-Lite Flush Glaze
Garage DoorAnkmar Energy Craft Series, 16'×8', Insulated Steel
Door HardwareSchlage Century (front) / Schlage Soltice (interior)
Insulation
Exterior WallsR-21 Batt + Vapor Barrier
AtticR-49 Blown Fiberglass
Garage WallsR-19 Batt + Vapor Barrier
Garage CeilingR-30 Batt
Rim JoistR-21 Batt
Electrical
Service200-Amp Siemens, 2023 NEC
EV OutletLevel 2 · 240V / 50-Amp Dedicated Circuit
Switches & OutletsDecora Style Throughout
Kitchen
AppliancesSamsung Stainless Steel Suite
Range30" Freestanding Gas
Refrigerator36" French-Door
SinkKohler Single Bowl Undermount, Matte Black
FaucetDelta Pull-Out, Chrome
Countertops3cm Quartz Slab, Eased Edges
BacksplashDal Tile Artefino 2"×2" Mosaic
CabinetsOne Source Frameless Slab, Baroque Oak
DisposalInsinkerator Badger 5XP (3/4 HP)
Bathrooms
ToiletsKohler Cimarron Elongated, 1.28 GPF
FaucetsDelta Ashlyin Chrome Throughout
Primary ShowerEuro Frameless, 3/8" Clear Glass
Guest TubSterling 60"×30" Soaking Tub
Shower TileDal Tile D-190 White Gloss 6"×6", Tile to Ceiling
Countertops3cm Quartz w/ 4" Backsplash
Mechanical
FurnaceAmana 96.1% Efficiency, 60,000 BTU
Air ConditioningAmana 2-Ton, 14.5 SEER
Water HeaterRinnai Tankless, 199,000 BTU
Water PipingCross-Linked PEX
ThermostatProgrammable Honeywell
Interior Finishes
Flooring (Main)Mozaik Lyrus Select LVP, 7"×60"
Paint — WallsSherwin Williams Agreeable Gray SW 7029
Paint — ExteriorSW Rock Bottom SW 7062 / Shoji White Trim
Stair RailPowder Coated Metal, Black Square Profile
Window Coverings2" Cordless Faux Wood Blinds (10 total)
FireplaceNapoleon Entice 42" Electric, 5,000 BTU

*All specifications subject to change at builder's sole discretion due to product availability & pricing.

A Community Surrounded by Momentum

Rogers 14 is located within the Pleasant View Metropolitan District, one of the most active redevelopment corridors in the Golden area. Multiple projects are under construction or in advanced planning, bringing new housing, parks, infrastructure, and community amenities. Buyers are stepping into a neighborhood on the rise. Just 2.3 miles from the Colorado School of Mines.
01

GW Apartments

Modern multifamily redevelopment replacing aging stock — signaling long-term investment in the corridor and increased walkability.

02

Avere

High-end townhomes, apartments, and cohesive community design that elevates neighborhood aesthetics and demonstrates strong demand for new construction.

03

Rock Rest

Future multifamily expansion replacing aging structures — adding modern housing options and increasing long-term neighborhood stability.

04

Glo Park Expansion

State-led expansion featuring green space, play areas, community gathering spaces, and improved pedestrian connectivity.

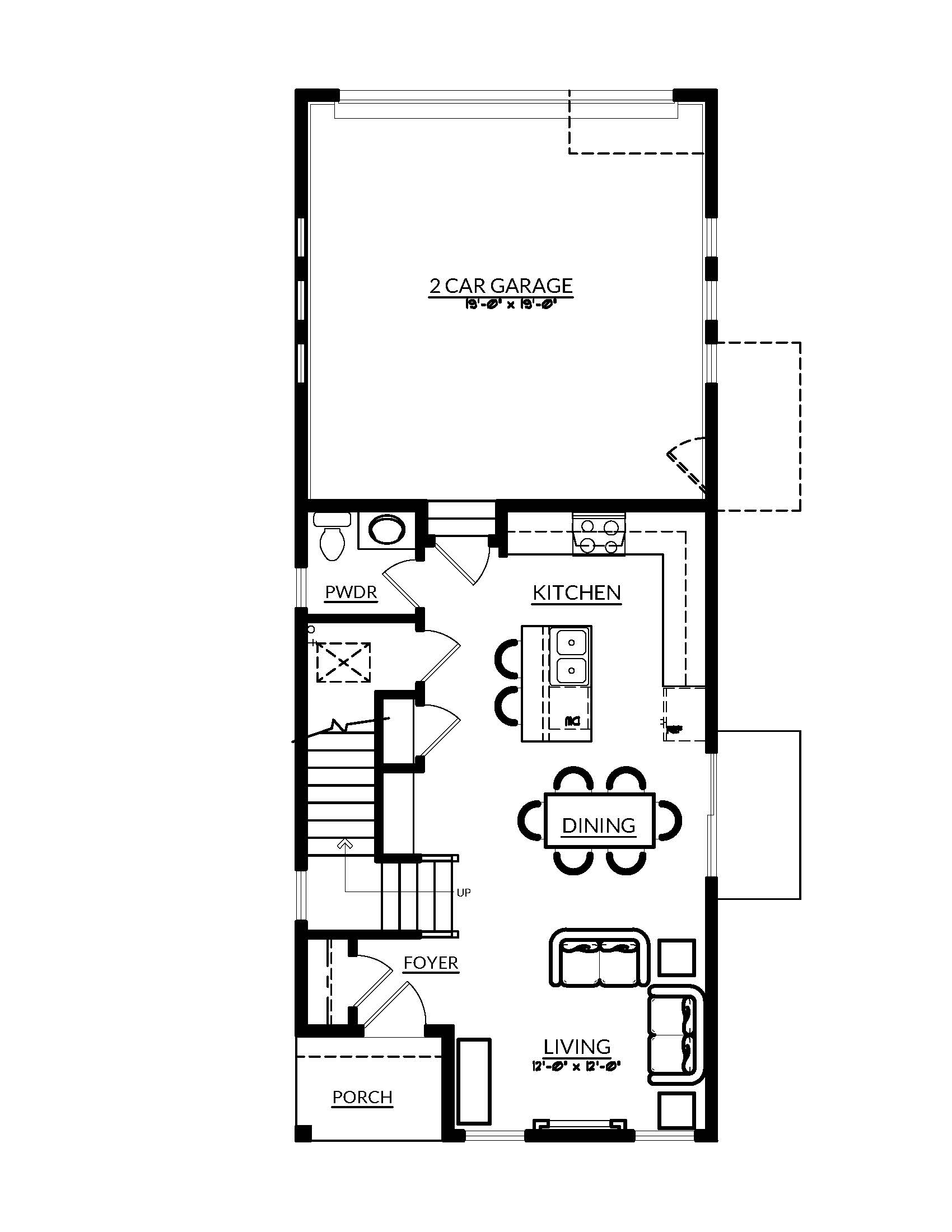
Thoughtfully Designed

575 Finished Sq Ft
  • Living Room12'–0" × 12'–0"
  • KitchenOpen Concept
  • Dining RoomFormal Dining
  • Garage2-Car, EV-Ready (16'×8' Door)
  • Powder RoomHalf Bath
  • EntryCovered Porch + Foyer
  • FireplaceNapoleon Entice 42" Electric
  • FlooringMozaik Lyrus LVP Throughout
  • Ceiling Height8'–0" (Hollow Core Doors)
Main Level Floor Plan
885 Finished Sq Ft
  • Primary Bedroom9'–0" × 13'–0" + WIC
  • Primary BathEuro Frameless Shower, Quartz
  • Bedroom 212'–0" × 11'–0"
  • Bedroom 311'–0" × 10'–0" + WIC
  • Bath 2Sterling 60"×30" Soaking Tub
  • LaundryUpper Level, Washer Box Included
  • MechanicalRinnai Tankless, Amana HVAC
  • Primary FanMinka Aire 52" LED w/ Remote
  • Total Bedrooms3 · Total Baths: 3 (incl. Powder)
Upper Level Plan
3 Bedrooms · 2 Full Baths · Laundry
Contact us to request full plan PDF

Site Plan & Lot Premiums

All 14 homes share the same base price of 95,000 — corner and end lots carry premiums reflecting their added privacy and positioning. Base price reflects 76 per square foot on 1,460 total finished square feet.
Lot Base Price Lot Premium Total Price
195,0000,00075,000
295,0000,00025,000
395,0000,00025,000
495,0000,00025,000
595,0000,00075,000
695,000/bin/sh95,000
795,0000,00025,000
895,0000,00025,000
995,000/bin/sh95,000
1095,000/bin/sh95,000
1195,000/bin/sh95,000
1295,000/bin/sh95,000
1395,0000,00025,000
1495,0000,00075,000

*Home prices and all specifications subject to change at builder's sole discretion due to product availability and pricing. Contact us for current availability by lot.

Hassle-Free Ownership

Whether you're traveling, downsizing, a long-term rental investor, or simply seeking low-maintenance living — the Rogers 14 HOA makes it easy to come and go with confidence. Each home is fully detached and individually owned. No shared walls, no dwelling insurance included in dues.

Enjoy true lock-and-leave freedom in this thoughtfully managed community, with a 20-year reserve plan ensuring the neighborhood stays sharp for the long run.

Snow Removal

Driveways and sidewalks cleared for safe, easy access all winter.

Lawn Maintenance

Front yard care keeps the neighborhood looking sharp year-round.

Trash & Recycling

Weekly service included — no scheduling, no hassle.

Master Water Billing

Simplified usage tracking and cost efficiency for all homeowners.

Common Area Insurance

Coverage for all shared spaces and community amenities.

20-Year Reserve Plan

Proactive budgeting ensures long-term community investment and value.

Get In Touch

Reserve Your Home
at Rogers 14

Availability is limited. This is one of the only opportunities to own new detached construction in Golden at this price point. Reach out to learn more.